TBM crane TBM crane TBM crane TBM crane TBM crane TBM crane TBM crane TBM crane TBM crane TBM crane TBM crane TBM crane TBM crane

Crane End Carriage Wholesale

Home / Products / End Carriage / Crane End Carriage

Crane End Carriage

Products

Crane end carriage is one of the important components of the crane structure. It is part of the crane bridge system. Its main function is to carry the crane's traveling mechanism and support the overall operation of the crane. Crane end carriage bears the load of the entire crane bridge system, the weight of the crane itself and the weight of the load. It has sufficient carrying capacity and stability to ensure that the crane will not be deformed or damaged during operation. This crane end carriage cooperates with the track and wheel system, so that the crane can run smoothly and accurately along the track. Its design must ensure good contact between the wheel and the track. It supports the crane's power drive system and control system. During operation, the crane's traveling mechanism, drive motor and other equipment are fixed on the end beam. Some protective structures are designed on the end beam to protect the crane's internal electrical system, mechanical system, etc. from external environmental influences.

  • Specification
  • About TBM
  • Contact Us
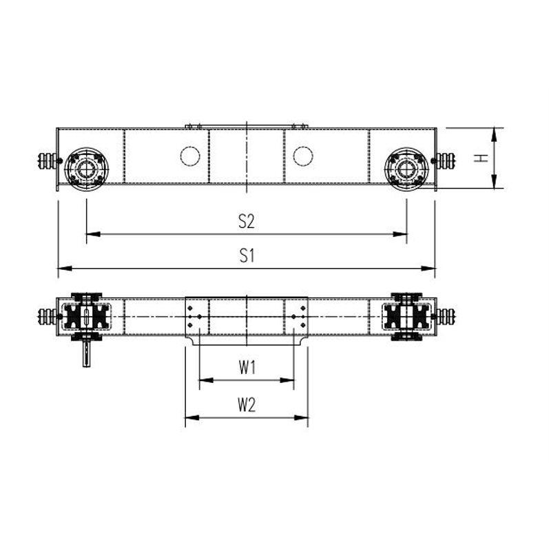
Model Application of crane model Square Tube Specification Wheel Size  Motor Model S1(mm) S2(mm) W1(mm) W2(mm) H(mm)
UL125-15 3.2t-7.5m 150x200x8 U125x60 FA27-0.55kW-73 1500 1280 400 550 212.5
UL125-20 3.2t-11.5m 2000 1780 400 550 212.5
UL125-25 3.2t-16.5m 2500 2280 400 550 212.5
UL125-30 3.2t-22.5m 3000 2780 500 650 212.5
UL125-35 3.2t-28.5m 3500 3280 600 750 212.5
UL160-15 6.3t-7.5m 150x250x8 U160x70 FA37-0.75kW-60 1500 1200 400 550 270
UL160-20 6.3t-11.5m 2000 1700 400 550 270
UL160-25 6.3t-16.5m 2500 2200 400 550 270
UL160-30 6.3t-22.5m 3000 2700 500 650 270
UL160-35 6.3t-28.5m 3500 3200 600 750 270
UL200-20 12.5t-11.5m 200x300x10 U200x70 FA47-1.1kW-48 2000 1700 500 650 320
UL200-25 12.5t-16.5m 2500 2200 500 650 320
UL200-30 12.5t-22.5m 3000 2700 600 750 320
UL200-35 12.5t-28.5m 3500 3200 600 750 320
UL250-20 16t-11.5m 200x400x10 U250x90 FA57-1.5kW-39 2000 1600 500 650 425
UL250-25 16t-16.5m 2500 2100 600 750 425
UL250-30 16t-22.5m 3000 2600 600 750 425
UL250-35 16t-28.5m 3500 3100 700 850 425
UL315-30 20t-16.5m 200x400x10 U315x80 FA67-2.2kW-32 3000 2500 600 750 430
UL315-35 20t-22.5m 3500 3000 600 750 430
UL315-40 20t-28.5m 4000 3500 700 850 430
Zhejiang Shuangniao Lifting Equipment Co., Ltd. is a special equipment company specializing in the research and development, production, marketing and after-sales service of wire rope electric hoists. Since its establishment, the company has attached great importance to new product development and technological innovation, and has been focusing on high starting points and high configurations. In the research and development of electric hoist, while continuously introducing foreign advanced technology, it actively develops the research and development of new European-style electric hoist, and establishes the core concept of "innovation leads the future, focus on achieving wonderful", which has become the vane of domestic electric hoist development and leads The development of domestic electric hoist industry.
About Us
Zhejiang Shuangniao Lifting Equipment Co., Ltd.
Zhejiang Shuangniao Lifting Equipment Co., Ltd.

As China Crane End Carriage Factory and Crane End Carriage Suppliers, Zhejiang Shuangniao Lifting Equipment Co., Ltd. is a special equipment company specializing in the research and development, production, marketing and after-sales service of wire rope electric hoists. Since its establishment, the company has attached great importance to new product development and technological innovation, and has been focusing on high starting points and high configurations. In the research and development of electric hoist, while continuously introducing foreign advanced technology, it actively develops the research and development of new European-style electric hoist, and establishes the core concept of "innovation leads the future, focus on achieving wonderful", which has become the vane of domestic electric hoist development and leads The development of domestic electric hoist industry.

News